original building before restoration
Project realized within Atelier Michel Rémon.
Task: architectural assistant for PRO2 phase.
Project fact sheet:
| project manager | EPAURIF | cost | – |
| design team | Francois Chatillon (Main architect), Atelier Michel Rémon (Architect), IGREC Ingenierie (Technical Coordinator & Security Engineer), Roux & Associes Ingenierie (Structural Engineer), SATELIS (Safety Coordinator), QUALICONSULT (Quality Control Bureau) | surface | 17 000 m2 SHON |
| program | facade restoration and interior rehabilitation of research and office building | label | – |
| calendar | PRO2 phase submitted January 2015 | location | 54 Boulevard Raspail, Paris, France |
| materials | metallic structure, mechanically operated blinds on glass facade, wooden and |
current floor plan
basement 1 floor plan
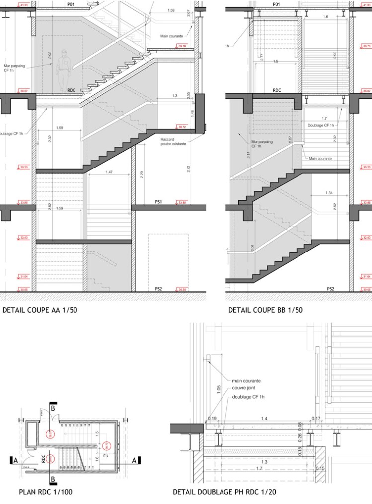
stairway rehabilitation detail
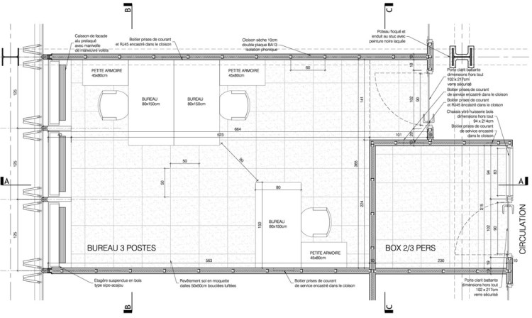
detail of 3 person office – plan
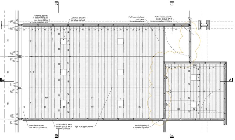
detail of 3 person office – ceiling plan
detail of 3 person office – longitudinal section
detail of 3 person office – transversal section
© All images are copyright of François Chatillon ACMH and Atelier Michel Rémon.











orcid.org/0000-0002-6084-2264
Discussion
No comments yet.