perspective of the individual houses
Collaboration within ACP architecture.
Task: architectural assistant for competition and public speaker.
Project fact sheet:
| project manager | Les Nouveaux Constructeurs | cost | – |
| architect | ACP Architecture – Renaud Caen (main), collaborators: Arnaud Maley, Canek Gómez Sotomayor, Alexandru Senciuc, Pierre Bakary-Gando | surface | 4 000 m2 |
| program | 24 individual houses and 22 appartments | label | – |
| calendar | competition laureate in July 2015 | location | Cormeilles en Parisis, Paris Area, France |
| materials | wood, brick, white cladding |
masterplan of the housing development
house typologies
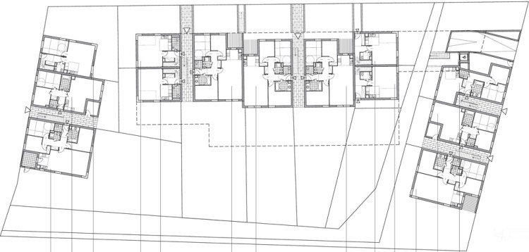
appartment building ground floor plan
north elevation
south elevation
© All images are copyright of ACP architecture.









orcid.org/0000-0002-6084-2264
Discussion
No comments yet.