Proiect de referinta / Design Reference
Casa in Cotroceni / Cotroceni House
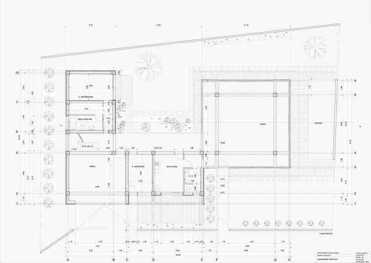
MEMORIU PLANSE
- PLAN COFRAJ PARTER (SCARA 1/50)
- PLAN PARTER ARHITECTURA (SCARA 1/50)
- PLAN ETAJ ARHITECTURA (SCARA 1/50)
- PLAN MANSARDA ARHITECTURA (SCARA 1/50) PLAN COFRAJ ETAJ (SCARA 1/50)
- PLAN COFRAJ SCARA (SCARA 1/20) SECTIUNE A-A (SCARA 1/50)
- PLAN FUNDATII (SCARA 1/50)
- DETALII FUNDATII (SCARA 1/20) SECTIUNI SCARA (1/20)










orcid.org/0000-0002-6084-2264
Discussion
Comments are closed.