Proiect de referinta / Design reference
Casa in Cotroceni / Cotroceni House
MEMORIU TEHNIC
DESCRIERE ARHITECTURA
Zona in care se afla casa prezinta un caracter puternic cu rol modelator. Cea mai importanta relatie a terenului este in legatura cu strada intrucat aceasta reprezinta legatura celor ce locuiesc in casa cu cei din afara lor, comunitatea. Mai mult decat atat, terenul se deschide catre strada spre o biserica, o gradinita, o intersectie, deci se afla intr-o zona mai activa a cartierului. Totusi asta nu inseamna ca o orientare a casei spre exterior reprezinta o solutie, dimpotriva. Acest proiect propune in primul rand o aranjare a casei in filtre care fac trecerea intr-un mod gradat de la spatiul public la spatiul privat.
Volumul de la care porneste casa este cel al unui cub, ce aduce aminte atat de casele din jur(ce pot fi privite in esenta ca niste monovolume) cat si de locuire in general.
Daca se ataseaza acestui cub in prima instanta aceasta dispunere in filtre obtinem o sectionare in 3 mari zone pe care le-am numit: utilitare, spatiu de zi si spatiu de noapte. Fiecare din aceste spatii poseda un anumit grad de nevoie de intimitate care face dispunerea lor evidenta.
Intervine forma terenului, putin atipica de altfel prin dispunerea sa cu latura lunga spre strada. Primul filtru, cel al utilitarelor, este cel mai apropiat de strada si astfel actioneaza ca o prima bariera. De aici rezulta forma sa usor alungita care are nevoie sa acopere o deschidere mai mare a terenului. Totodata, spatiul de zi are nevoie de o deschidere maxima catre toate spatiile intrucat este volumul cel mai des folosit. Spatiul de noapte prezinta un caracter intim care are nevoie de protectie. Solutia rezolvarii acestor probleme o reprezinta translatarea volumelor inspre laterale. Prin aceasta translatare se pastreaza caracterul fiecarui spatiu si totodata raspunde unei nevoi a terenului , cel de raspandire uniforma a casei pe suprafata acestuia.
Cel de-al treilea factor ce intervine in modelarea formei il reprezinta locuintele invecinate. Repozitionarea spatiului de noapte cu latura scurta spre strada ofera avantajul unui filtru fata de blocul de locuinte dar si o protectie suplimentara fata de strada. In acelasi timp aceasta repozitionare ofera spatiului de zi locul maxim care priveste in jur pe 360 de grade. Dispunerea in filtre a spatiilor interioare se reflecta astfel si in impartirea curtii intr-o succesiune de gradini care fac o tranzitie de asemenea de la public( curtea dinspre strada) la privat( curtea interioara care patrunde in casa.
Extrudarea celor doua spatii principale, cel de zi si cel de noapte, reprezinta atat o manifestare exterioara a acestora cat si o nevoie functionala. Spatiul de zi are nevoie de amplitudine atat pe orizontala cat si pe verticala. Dezvoltarea spatiului de noapte pe verticala creeaza o bariera spre blocul de locuinte. In acelasi timp diferenta de inaltime intre spatiul de noapte si spatiul de zi produce o trecere la nivelul ansamblului de locuinte de la blocul de locuinte(D+P+3) la casele din spate(P+1+M) si la casa parohiala(P+M).
Acoperisurile in sarpanta fac trimitere la sarpantele caselor din jur si reprezinta principalul element vizual de legatura. Preluarea este una de esenta intrucat acoperisurile casei nu prezinta cornisa, ci se continua cu peretele vertical spre a sublinia volumul. Alegerea de a face doua acoperisuri diferite este data de caracterul diferit ale celor doua spatii. Spatiul de zi are un caracter centrifug, este deschis pe toate patru laturile si astfel acoperisul care porneste dintr-un patrat se inchide in centru. De cealalta parte sta spatiul de noapte cu un caracter centripet, inchis catre strada si catre casele din jur, motive din care rezulta un acoperis in doua ape.
Ceea ce rezulta este o casa care, de fapt, isi neaga contextul. In spatele tuturor acestor elemente de legatura se ascunde ceea ce la inceput a fost un singur volum, o casa, o camera, si devine un ansamblu de volume, o succesiune de spatii. Si asta nu dintr-o greseala ci dintr-o alegere de a oferi posibilitatea transformarii ei si totodata din acea dorinta de a depasi modul de locuire intr-o camera, un volum. O casa nu trebuie conceputa ca un obiect perfect, un diamant, ci ca un obiect care evolueaza si se transforma in timp. Casa in primul rand, inaintea tuturor celorlalte tipuri de spatii, este expresia individului, iar individul este temporal si temporar.
DESCRIERE PARAMETRII
Locuinta prezinta o suprafata totala de 287 mp iar pe verticala se dezvolta in regim de S+P+E+M. Terenul prezinta o suprafata de 1000 mp, cu o forma aproximativ dreptunghiulara cu latura lunga catre strada pe directia N-S. La nivel de dotare, locuinta prezinta urmatoarele camere: living, studio, bucatarie, baie de serviciu, dormitor menajera, garaj pentru 2 masini, dormitor matrimonial, dormitor copii, camera copii. Structura casei este alcatuita din pereti structurali din beton armat, turnati monolit.
INSTALATII SANITARE
- 1. Generalitati
Locuinta familiala va avea ca regim de inaltime S+P+E+M, iar din punct de vedere al instalatiilor sanitare se vor amenaja: 2 camere de baie la parter si etaj, 1 grup sanitar parter, 1 bucatarie parter. In zona exista retea de canalizare si alimentare cu apa, locuinta racordandu-se la acestea.
Lucrarile de instalatii sanitare cuprind:
– Instalatii de alimentare cu apa rece si apa calda
– Instalatii de canalizare a apelor menajere
– Instalatii de canalizare a apelor pluviale
Se face mentiunea ca toate lucrarile de instalatii sanitare se proiecteaza in acord cu normativele si regulamentele in vigoare.
- A. Instalatii de alimentare cu apa rece si apa calda pentru consum menajer
Tipurile de obiecte sanitare cuprinse în proiect sunt:
– lavoar din semiporţelan sanitar tip montaj suspendat, cu baterie amestecătoare monocomandă,
– vas closet din semiporţelan sanitar, tip suspendat, cu rezervor de spălare montat ingropat,
– cada de baie cu baterie amestecatoare monocomanda si dus flexibil,
– spalator dublu de vase cu picurator, cu baterie monocomanda cu pipa lunga.
Reţelele interioare de alimentare cu apă rece şi cu apă caldă de consum s-au proiectat din ţeavă de polietilena reticulata pentru instalaţii sanitare (tip REHAU sau similar) de 16mm sau 20 mm diametru. Imbinarea se face prin presare, la rece, cu fitinguri şi piese de legătură aferente acestui tip de material. Montajul conductelor va fi ingropat in pardoseala sau zidarie. Conductele se vor poza in tub gofrat din polietilena.
Apa caldă de consum va fi preparată in centrala termica proprie. Aceasta se va amenaja intr-un spatiu de la subsol care se va incadra in toate normele impuse de standardele in vigoare pentru asemenea destinatie. Centrala este proiectata la o capacitate de 40kW.
- B. Instalatii de canalizare
Instalatii interioare de canalizare menajera
Reţelele interioare de canalizare menajeră proiectate pentru evacuarea apelor uzate colectate de la punctele de consum din camerele de baie si din bucatarie se vor executa cu tuburi şi piese de legătură din PP (sau PVC-U).
Retelele de canalizare corespunzatoare obiectelor: cada, lavoar, spalator, vor avea diametrul de f 50 mm. Retelele de canalizare corespunzatoare closetelor vor avea diamentrul f 110 mm cu o panta minima de 3%. Sifoanele de pardoseala din camerele de baie sunt din PVC cu diametrele de iesire f 50 mm. Cele doua tipuri de retele se vor racorda la conducta de canalizare principala verticala cu un diametru de f 110 mm, cu mentiunea ca in nici un caz nu se va face unirea celor doua retele inainte de acest moment. Aceasta conducta de canalizare traverseaza imobilul vertical, la partea de sus exista o ventilare naturala, la partea de jos se racordeaza la cel mai apropiat camin de vizitare.
Instalatii interioare de canalizare pluviala
Cladire va avea acoperis partial tip sarpanta si partial tip terasa circulabila. Apele meteorice colectate pe acoperisul tip sarpanta se vor evacua prin sistem de jgheaburi si burlane la rigola trotuarului. Apele meteorice care provin din ploi sau topirea zapezii de pe terasa vor fi evacuate printr-o retea de canalizare care se compune din urmatoarele elemente:
– 2 receptoare de ape meteorice, care colecteaza apa toata suprafata terasei,
– 2 coloane,
– conductele orizontale de la coloane la căminele exterioare de canalizare din incinta, din imediata apropiere a cladirii.
Reţeaua interioară de canalizare pluviala s-a proiectat din tuburi şi piese de legătură pentru canalizari interioare (PVC tip U de f 110 mm). Coloanele se vor monta aparent, mascate in ghene, iar conductele orizontale ingropate in pardoseala, cu o panta minima de 2% spre caminele de vizitare existente in exteriorul cladirii. Evacuarea apelor pluviale se va face prin doua racorduri din PVC f110 în reteaua de canalizare din incinta.
Toate materialele si confectiile metalice vor corespunde cu standardele si normativele emise de Oficiul Roman pentru Standarde sau alte institutii de specialitate autorizate. Toate materialele si componenetele importate vor avea agremente si certificate de aprobare conform legilor in vigoare.
INSTALATII TERMICE
- 1. Generalitati
Sistemul de incalzire este unul mixt, ce are in componenta atat corpuri statice(radiatoare) cat si ventiloconvectoare si sisteme de incalzire in pardoseala. Distributia agentului termic va fi inferioara, bitubulara, cu circulatie fortata.
Agentul termic va fi furnizat de la centrala termica proprie care se va amenaja intr-un spatiu de la subsol. Dimensionarea centralei termice s-a facut pentru un necesar de caldura de 40kW. Temperatura maxima a agentului termic este de 90oC.
Instalaţiile interioare de incalzire proiectate, cuprind următoarele categorii de lucrări:
– Calculul necesarului de caldura pentru fiecare incapere
– Alegerea corpurilor de incalzire
– Dimensionarea retelei de distributie a agentului termic apa calda (90°C – 70°C)
– Dimensionarea retelei de distributie a agentului de racire in timpul sezonului calduros (7°C – 12°C) de la chiller catre ventiloconvectoare.
Se face mentiunea ca toate lucrarile de instalatii sanitare se proiecteaza in acord cu normativele si regulamentele in vigoare.
A. Calculul necesarului de caldura pentru fiecare camera
| Nr. Camera | Supraf | Volum | K | Putere | |
| P01 | 33.33 | 91.99 | 40 | 3679.6 | |
| P02 | 11.83 | 32.65 | 40 | 1306 | |
| P03 | 14.62 | 40.35 | 40 | 1614 | |
| P04 | 4.9 | 13.52 | 50 | 676 | |
| P05 | 95.46 | 358 | 45 | 16110 | |
| P06 | 31.59 | 87.18 | 40 | 3487.2 | |
| P07 | 6.5 | 17.94 | 40 | 717.6 | |
| P08 | 14.7 | 40.57 | 40 | 1622.8 | |
| E01 | 10.18 | 28.56 | 45 | 1285.2 | |
| E02 | 6.5 | 17.34 | 40 | 693.6 | |
| E03 | 14.7 | 40.57 | 40 | 1622.8 | |
| M01 | 10.18 | 28.56 | 45 | 1285.2 | |
| M02 | 31.43 | 87.89 | 40 | 3515.6 | |
| 37615.6 |
B. Descrierea solutiilor proiectate
Proiectarea instalaţiilor interioare de încălzire s-a făcut pe baza temei de proiectare si a planşelor de arhitectură care cuprind dimensiunile si destinaţiile spatiilor, materialele de execuţie si izolatie a cladirii, mărimea golurilor şi a parapeţilor, în funcţie de care s-au determinat pierderile de căldura pentru fiecare încăpere în parte.
Instalatiile interioare de incalzire proiectate pentru locuinta sunt compuse din:
– corpurile de incalzire statice;
– ventiloconvectoare;
– sistemul de incalzire in pardoseala;
– reteaua de distributie a agentui termic, cu circuite independente in functie de temperatura agentului termic;
– centrala termica proprie.
Asa cum am precizat, in perioada calda a anului, ventiloconvectoarele pot raci spatiul livingului si a studioului. Agentul de racire va fi asigurat de la chillerul montat in exteriorul cladirii. Instalatia de racire cu ventiloconvectoare cuprinde:
– chillerul;
– reţeaua de distribuţie a apei racite (7°C – 12°C) de la chiller catre ventiloconvectoare si retur.
Corpurile de incalzire
Radiatoarele prevăzute in proiect sunt din otel tip panou si se vor monta aparent, pe console metalice fixate de elementele de construcţie. In camerele de baie se vor monta radiatoare din otel tip portprosop.
Dimensionarea corpurilor de încălzire s-a făcut pe baza necesarului de căldura calculat pentru fiecare încăpere in parte, iar alegerea lor s-a realizat in functie de datele tehnice furnizate de firmele producatoare de radiatoare de acest tip, pentru temperatura agentului termic apa calda 900-700C.
Toate corpurile de încălzire vor fi echipate cu robinete cu cap termostatic pe tur, robinete de reglaj pe retur si ventile de aerisire, obtinindu-se astfel confortul termic dorit in fiecare incapere functie de destinatia ei.
Ventiloconvectoarele
Ventiloconvectoarele alese in proiect sunt de pardoseala, cu 2 tevi (si pentru agent de incalzire si pentru agent de racire). Reteaua de distributie este astfel conceputa incat sa nu permita patrunderea apei racite in radiatoare ci doar in ventiloconvectoare.
Sistemul de incalzire in pardoseala
Pentru sistemul de incalzire in pardoseala se prevede un distribuitor separat de cel al ventiloconvectoarelor dar si de cel al radiatoarelor, intrucat acesta functioneaza intr-un regim special, economic. De asemenea, datorita suprafetei extinse pe care acesta trebuie sa o acopere se vor prevede o serie de rosturi de dilatatie. Sistemul se va realiza din teava de polietilena (tip REHAU sau similar). Tehnologia de imbinare este prin presare, la rece, cu fitinguri aferente acestui sistem.
Reteaua de distributie
Reteaua de distributie a agentului termic se va realiza din teava de polietilena reticulata (tip REHAU sau similar). Tehnologia de imbinare este prin presare, la rece, cu fitinguri aferente acestui tip de material.
Distribuţia agentului termic – apa calda cu temperatura 900-700C este inferioara, de tip bitubular, cu circulatie fortata.
Conductele pentru transport apa calda vor fi pozate in tubulatura gofrata din polietilena, iar cele pentru transport apa racita se vor monta in tub din poliuretan tip Elastomer de 19mm grosime.
Distribuitor-colectorul va fi echipat cu robinete de inchidere pe tur si pe retur, impreuna cu toate celelalte sisteme de control al agentului termic prevazute de sistemele adoptate sau normative. Robinetele de inchidere sunt astfel prevazute incat sa nu se permita circulatia agentului de racire in radiatoare.
Dimensionarea retelei de distribuţie s-a făcut astfel încât să se asigure următorii parametrii:
– alimentarea corpurilor de încălzire cu cantitatea de căldură/frig determinată;
– posibilitatea reglării instalaţiei la schimbarea condiţiilor normale de funcţionare;
– confort sporit.
Centrala termica
Centrala termica propie se va amenaja intr-un spatiu de la subsol. Incaperea in care se va monta cazanul trebuie sa se inscrie in toate cerintele normativelor si a standardelor in vigoare. Capacitatea termica a centralei este de 40 kW. Nu necesita cos de fum, este cu tiraj fortat si va avea kit (tubulatura) de evacuare gaze/admisie aer.
Chiller
Chillerul asigura agentul de racire pentru instalatia cu ventiloconvectoare din living. Apa racita in chiller la 7oC intra in ventiloconvectoare si iese din ele cu 12oC, reluindu-se circuitul de racire. Chillerul se va amlasa in exteriorul cladirii.
Reteaua de distributie a apei racite
Reteaua se racordeaza la de distributie a agentului termic de iarna. Sistemul se va realiza din teava de polietilena reticulata (de tip REHAU sau similar) si se vor monta in tub din poliuretan tip Elastomer de 19mm grosime pentru protectie. Trecerea de la sistemul de incalzire la cel de racire se va efectua prin inchiderea, respectiv deschiderea, robinetilor corespunzatori prezentati in planurile de arhitectura. Este de mentionat prezenta unor guri de evacuare a apei din tevi, nevoia venind din posibilitatea golirii acestora pe timp de iarna. Gurile de evacuare se vor monta in apropierea robinetilor de inchidere/deschidere.
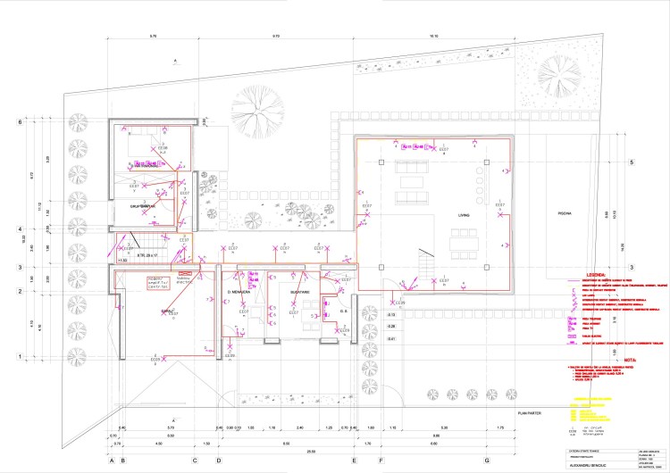
INSTALATII ELECTRICE
Locuinta se racordeaza la reteaua electrica edilitara prin tabloul electric general situat in garaj. Instalatiile electrice din interiorul casei se impart in doua categorii: instalatii electrice pentru iluminat si prize, instalatii electrice de curenti slabi(telefon, TV, internet).
Tabloul electric este tipizat si dimensionat conform necesitatilor locuintei dupa normativele in rigoare. In tabelul de mai jos este prezentata necesarul de putere al casei care a condus atat catre dimensionarea tabloului cat si a circuitelor electrice.
| Numar circuit | Destinatie | Putere instalata [kW] |
| 1 | Iluminat living+acces | 720 |
| 2 | Iluminat hol + garaj + bucatarie | 580 |
| 3 | Iluminat casa scarii + camere | 680 |
| 4 | Prize living | 2000 |
| 5 | Prize bucatarie | 2000 |
| 6 | Prize bucatarie (cuptor electric) | 2500 |
| 7 | Prize garaj + camera menajera | 1500 |
| 8 | Prize camera parter | 1000 |
| 9 | Priza baie (masina de spalat automata) | 2500 |
| 10 | Prize subsol | 1000 |
| 11 | Iluminat etaj | 500 |
| 12 | Prize etaj | 1000 |
| 13 | Iluminat mansarda | 300 |
| 14 | Prize mansarda | 1000 |
| Putere totala instalata [kW] | 17.280 | |
Instalatii electrice pentru iluminat si prize
Corpurile de iluminat s-au proiectat astfel incat sa asigure un nivel optim de confort, in functie de necesitatile fiecarei incaperi si in concordanta cu normativele in rigoare. In acest sens s-a avut in vedere urmatoarele conditii: nivelul de iluminare(cantitatea de lumina), culoarea luminii si capacitatea de redare a luminii(calitatea luminii), directionarea fluxului luminos, prezenta luminii de zi, consideratii energetice, perenitatea sistemului luminos. In acest sens s-au folosit urmatoarele aparate de iluminat: plafoniere, lustre, corpuri tubulare. S-au folosit atat becuri cu incandescenta cat si becuri fluorescente, economice.
Comanda iluminatului se realizeaza cu intrerupatoare, comutatoare si intrerupatoare cap-scara. Comanda iluminatului de pe casa scarii se poate realiza de pe orice nivel.
Instalatiile de priza s-au proiectat in functie de necesitatile fiecarei camere.
Instalatia electrica se executa din conductoare de cupru, protejate in tuburi de protectie etanse din PVC, cu sectiunile 1.5 mmp pentru iluminat si 2.5 mmp pentru prize. Conductoarele sunt pozate sub nivelul pardoselii finite, demontabile, pentru a usura accesul, in caz de nevoie. Conductoarele se protejeaza suplimentar, acolo unde este cazul, prin tuburi de PVC sau metalice(in cazul contactului cu materiale inflamabile).
Instalatii electrice de curenti slabi
Instalatiile electrice de curenti slabi cuprind: televiziunea, telefon, internet. Splitterul/amplificatorul TV, modemul si eventuala centrala telefonica vor fi montate in garaj pentru usurinta la exploatare si interventia la echipamente.
Se face mentiunea posibilitatii montarii unei retele de internet wireless care face posibila renuntarea la prizele de internet din fiecare incapere, ceea ce ar spori confortul si mobilitatea in interiorul casei. De asemenea, exista posibilitatea instalarii unui singur post de telefon, restul telefoanelor operand in tipul “cordless” si care de asemenea ar spori confortul si mobilitatea in interiorul casei. Instalatia de televiziune se poate realiza cu receptie prin satelit sau prin cablu cu unul sau mai multe receptoare.
Instalarea, verificarea si reparatia sistemului de instalatii electrice de curenti slabi se va executa doar de catre un personal calificat. Acestea se vor executa in concordanta cu normativele in rigoare.










orcid.org/0000-0002-6084-2264
Discussion
Comments are closed.