article
--ARCHIVE, EXERCISE

Finishes design for individual house

Proiect de referinta / Design Reference

Casa in Cotroceni / Cotroceni House

DETALIERE SARPANTA / SLOPED ROOF

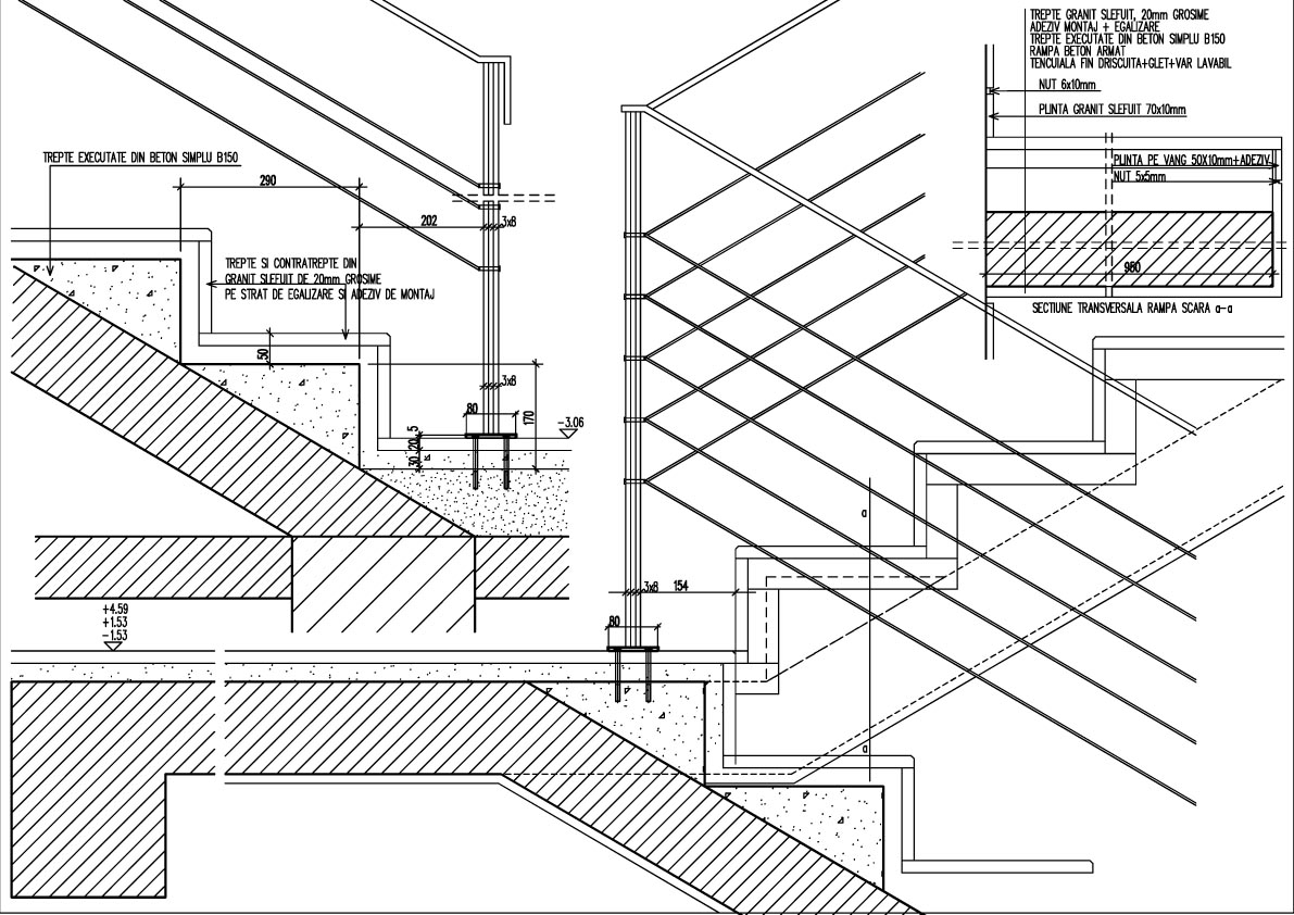
DETALIERE SCARA / STAIRWAY

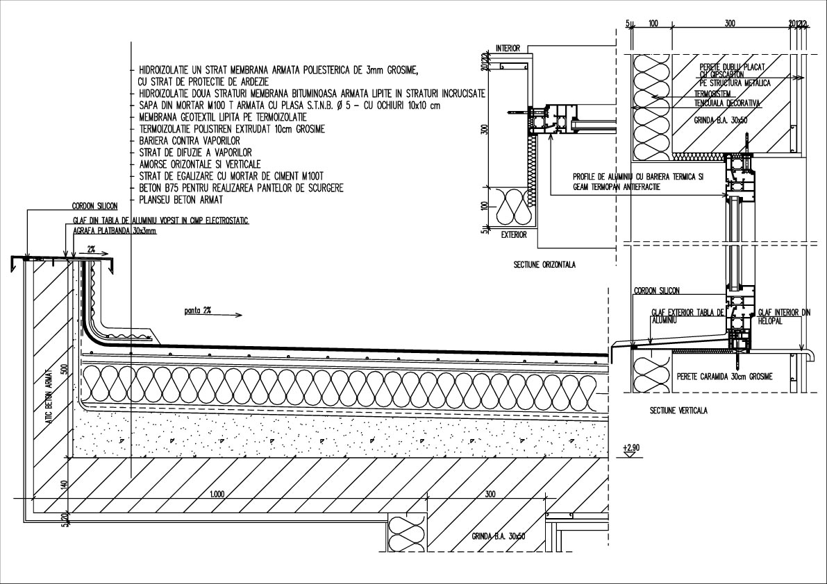
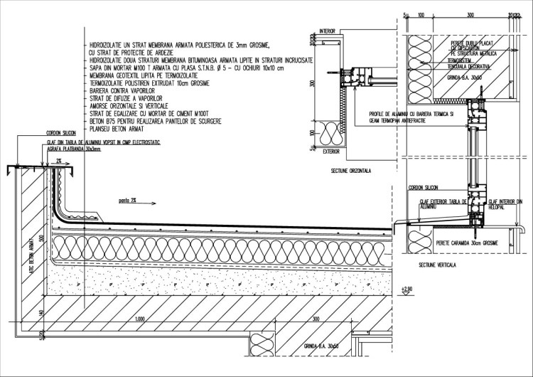
DETALIERE TERASA + TAMPLARIE / TERACED ROOF + JOINERY

Unknown's avatar

About alexandru senciuc

I am an architect in the pursuit of research and innovation in collective intelligence and healthcare planning. Currently, I work as a snr architect at Medical Architecture and am a PhD Student at the Bartlett School of Architecture, University College London.

Discussion

Comments are closed.

Network

Salus Global Knowledge

LinkedIn

twitter
google-scholar-logo
google-scholar-logo
academia-edu-logo
images

© alexandru senciuc

all rights reserved, unless otherwise stated.