TEMA / THE ASSIGNMENT
DESCRIERE / DESCRIPTION
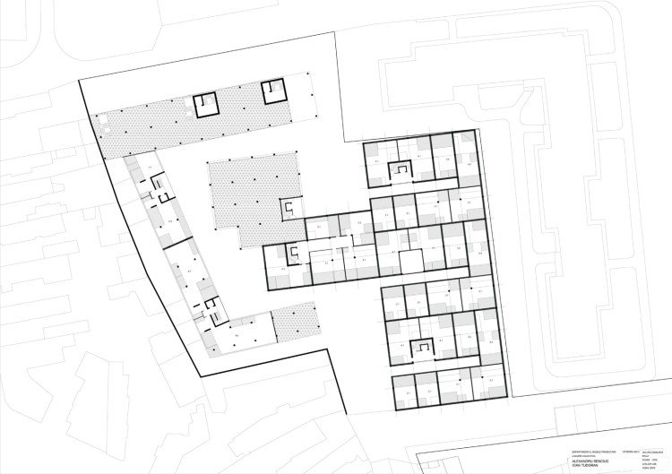
Analiza sitului si a zonei, desi fara un caracter specific puternic, a determinat organizarea ansamblului sub forma continuarii incintelor(dintre Piata Victoriei si Gara si mai apoi la nivelul insulei urbane) catre interior, asemeni unui castel. Am inserat in acest ansamblu un pliu in forma unui spatiu public articulat in doua piete ce prezinta de asemenea rolul de circulatie si legatura cu strazile exterioare ansamblului. Cerintele temei si restrictiile sitului in materie de suprafete, numar de apartamente, POT, CUT, ne-au oferit libertatea de a implanta o tipologie de locuire mai aparte, intre locuinte-covor si apartamente, de locuinte + gradina. Aceste locuinte, desi ocupa o suprafata la sol mare, prezinta trei consecinte pozitive: la nivel de peisaj urban se racordeaza la specificul bucurestean(strazi inguste si adanci, calcane inalte), delimiteaza si creeaza fond pentru zona de spatiu public, limiteaza dezvoltarea ulterioara a zonei la o inaltime mai mica, mentinand astfel calitatea spatiului public creat.
Spatiile comunitare si cele private creeaza o impletire ce se desfasoara atat pe orizontala cat si pe verticala. Astfel, in partea de nord, in volumul P+6 am amplasat spatii comerciale si pentru birouri astfel incat accesul dinspre exterior sa se poata realiza cu usurinta. In zona centrala am amplasat un restaurant si o sala de fitness, spre est o cafenea si o librarie. In partea centrala spre sud, in zona cu cea mai mare deschidere, am amplasat o dotare destinata recreatiei: sala de jocuri, club de dans, terasa. Aceasta prezinta un parter liber ce continua zona de piata si se prezinta intr-o forma major verticala, de reper. In continuarea pietei spre sud-est am amplasat o zona de joaca pentru copii.
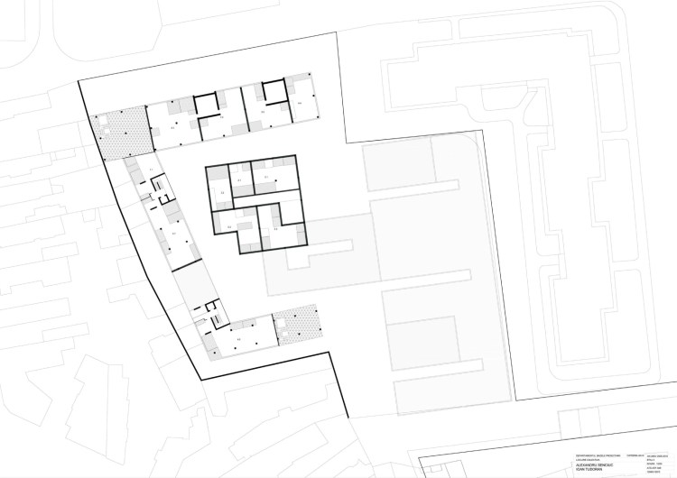
Calcanul dinspre vest a prezentat o dilema in ce priveste relationarea ansamblului de locuinte cu acesta. Am dorit pe de o parte sa realizam o constructie care sa creeze un echilibru intre cele doua tipuri de tesut si pe de alta parte sa optimizeze ocuparea spatiului. Varianta cea mai buna in acest sens a fost de a creea un gol de 5m latime intre cele doua tesuturi. La nivelul parterului am lipit cele doua tipologii spre a separa spatiul ramas in proportii confortabile. Ceea ce a rezultat este o curte destul de intima ce poate fi folosita de mai multi locuitori, insa in acelasi timp am obligat, prin servitute, constructiile viitoare sa se limiteze in inaltime la cea actuala.
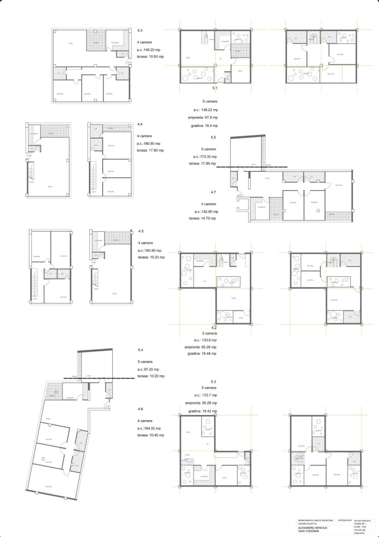
Am ales spre detaliere un subansamblu care, cu mici modificari, se repeta de 3 ori. Structura este una simpla, continua, pe cadre. Ansamblul este constituit din 8 apartamente, 5 tipuri diferite si o mica librarie/cafenea la nivelul parterului ce deserveste piateta adiacenta. Din suprafata individuala initiala a apartamentelor ( de altfel destul de mare) am extras o mica gradina. Aceasta gradina este cea care aduce lumina in casa dar si cea care vara creeaza o atmosfera racoroasa.
The analisys of the site and the surrounding area, although without any special feature, has led us to organizing the ensemble in the shape of a spiraling precint(the widest one between Piata Victoriei and Gara de Nord, the next one in the neighbourhood) twisting towards the inside, almost like a castle. Then we have inserted a fold in the shape of public space that crosses from north to south with two joints in the shape of squares. The assignment and the site restrictions concerning building areas, number of appartments etc. have given us the oportunity of introducing e special kind of housing typology, somwhere between flats and “carpet” dwellings, a small 2 storey house garden. Although they tend to spread horizontaly, they do determine three pozitive consequences: the urban landscape they create resemble the specific Bucuresti landscape(with long narrow streets and high blank walls), they separate and create background for the public space area, they stop any further housing developments from rising too high, thus maintaining the quality of the urban space.
I have chosen to detail a part of the ensemble which, with small alterations, is repeated three times. The structure is simple and continuous, a grid made of beams and pillars. The ensemble is made of 8 apartments, 5 different types, and a small bookshop/coffeeshop on the first floor connected with the small square. From the initial surface from every apartment (quite large actually) I have extracted a small garden. This garden is meant to bring light inside the house but it is also the one that creates shade and cool air during the summer.
ANSAMBLUL / THE ENSEMBLE
subsol / basement floor
parter / first floor
etaj 1 / 2nd floor
etaj 2 / 3rd floor
etaj 3 / 4th floor
etajele 4-6 + planul de sit / floors 5-7 + site plan
DETALIERE / DETAIL
parter + subsol / 1st floor + basement
etaj 1 + etaj 2 / 1st floor + 2nd floor
fatade + sectiuni / facades + section
detaliere apartament / apartment detail
detaliu travee / travee detail































orcid.org/0000-0002-6084-2264
Discussion
Comments are closed.