Zona in care se afla casa prezinta un caracter puternic cu rol modelator. Cea mai imporanta relatie a terenului este in legatura cu strada intrucat aceasta reprezinta legatura celor ce locuiesc in casa cu cei din exterior, comunitatea. Mai mult decat atat, terenul se deschide catre strada spre o biserica, o gradinita, o intersectie, deci se afla intr-o zona mai activa a cartierului. Totusi, asta nu inseamna ca o orientare a casei spre exterior reprezinta o solutie, dimpotriva. Acest proiect propune in primul rand o aranjare a casei in filtre care fac trecerea intr-un mod gradat de la spatiul public la spatiul privat.
The context in which the house sits has a strong character. The most important relationship is that between the site and the house as it stands for the connection between the dwellers of the house and their comunity. Moreover, the site opens towards a church, a kindergarden and an intersection, the most active area of the neighbourhood. However, this does not mean that pointing the house towards the street is the solution, on the contrary. The main design feature of this house is that of aranging the house in a series of filters that grade the crossing from public space to private space.
Volumul de la care porneste casa este cel al unui cub, ce aduce aminte atat de casele din jur(ce pot fi privite in esenta ca niste monovolume) cat si de locuire in general.
The starting volume is that of a cube, a reminder of the surrounding buildings(which in essence resemble a cube) as well as of dwelling in general.
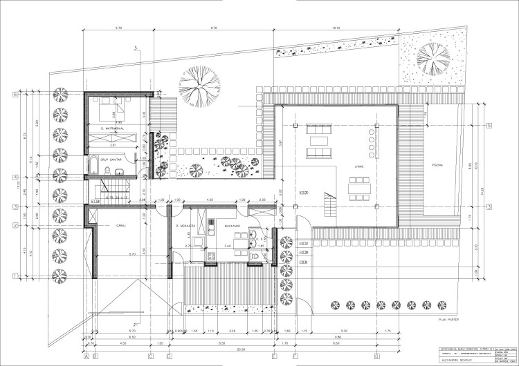
Daca se ataseaza acestui cub in prima instanta aceasta dispundere in filtre, obtinem o sectionare in 3 mari zone pe care le-am numit: utilitare, spatiu de zi si spatiu de noapte. Fiecare din aceste spatii poseda un anumit grad de intimitate care face dispunerea lor evidenta.
The first step is to attach a layering to this cube, thus obtaining a section into 3 main areas which I have named: utility, day area and night area. Each of these spaces has its own intimacy level which makes the arrangement obvious.
Intervine forma terenului, putin atipica de altfel prin dispunerea sa cu latura lunga spre strada. Primul filtru, cel al utilitarelor, este cel mai apropiat de strada si astfel actioneaza ca o prima bariera. De aici rezulta forma sa usor alungita care are nevoie sa acopere o deschidere mai mare a terenului.l Totodata, spatiul de zi are nevoie de o deschidere maxima catre toate spatiile intrucat este volumul cel mai des folosit. Spatiul de noapte prezinta un caracter intim care are nevoie de protectie. Solutia rezolvarii acestor probleme o reprezinta translatarea volumelor inspre laterale. Prin aceasta translatare se pastreaza caracterul fiecarui spatiu si totodata raspunde unei nevoie a terenului, cel de raspandire uniforma a casei pe suprafata acestuia.
This is where the shape of the plot comes into play,a little awkward as most of it is facing the street. The first filter, utility, is the one closest to the street behaving like a barrier. This is where it takes its slightly elongated shape. The day area needs maximum opening towards all sides as it is the most frequently used space. The night area needs intimacy and protection. The solution is by sliding each area sideways and by this ocupying the plot evenly.
Cel de-al treilea factor ce intervine in modelarea formei il reprezinta locuintele invecinate. Repozitionarea spatiului de noapte cu latura scurta spre strada ofera avantajul unui filtru fata de blocul de locuinte dar si o protectie suplimentara fata de strada. In acelasi timp aceasta repozitionare ofera spatiului de zi locul maxim care priveste in jur pe 360 de grade. Dispunerea in filtre a spatiilor interioare se reflecta astfel si in impartirea curtii intr-o succesiune de gradini care fac o tranzitie de asemenea de la public(curtea dinspre strada) la privat(curtea interioara patrunde in incinta casei).
The third element that comes into play consists of the surrounding buildings. Repositioning the night area oposite the apartment building provides a double filter, towards the building and towards the street. At the same time, by repositioning the night area, the day area opens up to a 360 view. The layering of the interior spaces creates a division of the exterior garden, separating it into a crescendo of smaller gardens from that in front of the house to the one in the back.
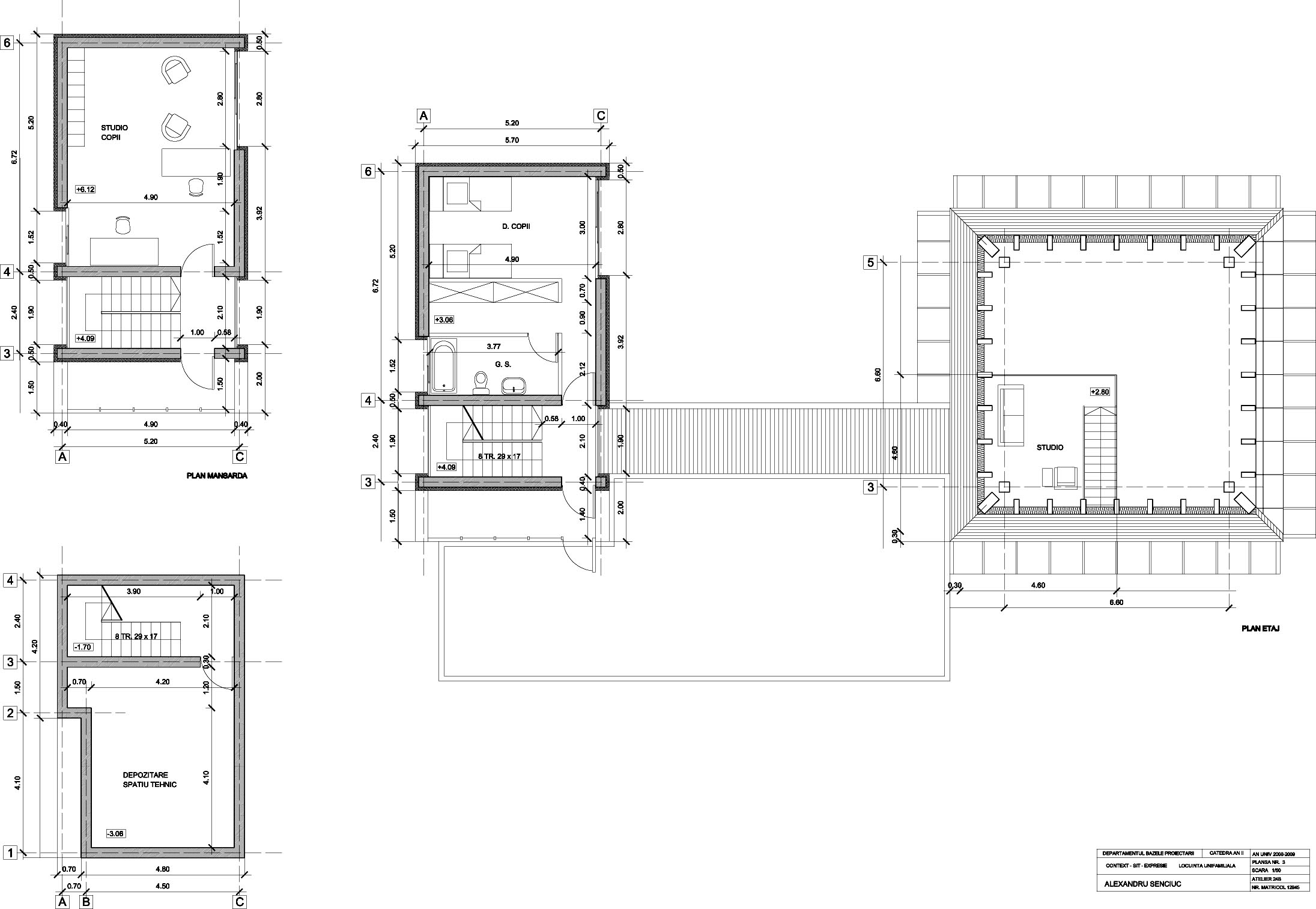
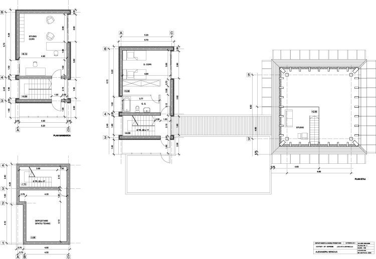
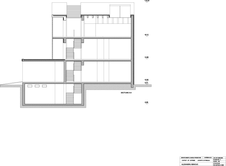
Extrudarea celor doua spatii principale, cel de zi si cel de noapte, reprezinta atat o manifestare exterioara a acestora cat si o nevoie functionala. Spatiul de zi are nevoie de amplitudine atat pe orizontala cat si pe verticala. Dezvoltarea spatiului de noapte pe verticala creeaza o bariera spre blocul de locuinte. In acelasi timp, diferenta de inaltime intre spatiul de noapte si spatiul de zi produce o trecere la nivelul ansamblului de locuinte de la blocul de locuinte (D+P+3) la casele din spate (P+1+M) si la casa parohiala (P+M).
The extrusion of the two main areas, day and night, has both an aesthetic role(by emphasising the two main areas) and a functional one. The day area needs amplitude both horizontaly and verticaly. By extruding the night area there is a barrier created towards the apartment building. At the same time, the difference in height creates a slope connecting the apartment building, the buildings behind and the building on the corner.
Acoperisurile in sarpanta fac trimitere la sarpantele caselor din jur si reprezinta principalul element vizual de legatura. Preluarea este una de esenta intrucat acoperisurile casei nu prezinta cornisa, ci se continua cu peretele vertical spre a sublinia volumul. Alegerea de a face doua acoperisuri diferite este data de caracterul diferit ale celor doua spatii. Spatiul de zi are un caracter centrifug, este deschis pe toate patru laturile si astfel acoperisul care porneste dintr-un patrat se inchide in centru. De cealalta parte sta spatiul de noapte cu un caracter centripet, inchis catre strada si catre casele din jur, motive din care rezulta un acoperis in doua ape.
The sloped roofs have their origin in the surrounding buildings, and is the main visual feature that connects the house to the context. However, by connecting the roof to the outside wall, by giving up the cornice, the volume itself is emphasised. Chosing a diferent roof for each space is because of the different properties of the two. The day area is centrifugal, opening itself to all four sides, thus the roof in four slopes. On the other hand, the centripetal night area has only two slopes, closing up on two of the sides.
Ceea ce rezulta este o casa care, de fapt, isi neaga contextul. In spatele tuturor acestor elemente de legatura se ascunde ceea ce la inceput a fost un singur volum, o casa, o camera, si devine un ansamblu de volume, o succesiune de spatii. O casa nu trebuie conceputa ca un obiect perfect, un diamant, ci ca un obiect care evolueaza si se transforma in timp. Casa in primul rand, inaintea tuturor celorlalte tipuri de spatii este expresia individului, iar individul este temporal si temporar.
The result is a house which refuses the context in which it has been placed. Behind all these connections lies what in the beginning was a single volume, a house, a room, and has now become a collage of volumes, a series of spaces. The house needen’t be the perfect object, the diamond, but a spaces which transforms over time. The house is, before all other types of spaces, the expression of man, and man is temporary and temporal.
see also:
https://alexandrusenciuc.wordpress.com/2010/02/19/locuinta-cotroceni-cotroceni-residence/
http://iaim.ro/galerie/proiecte/512/
















orcid.org/0000-0002-6084-2264
Discussion
No comments yet.