Collaboration within Atelier DCCP Architectes.
Task: project collaborator, communication with Leigh & Orange team.
Project facts (FR):
| mou | West Kowloon Cultural District Authority | coût | 2 000 000 €HT |
| moe | Atelier DCCP Architectes avec Leigh & Orange Ltd. | superficie | 1000 m2 |
| programme | Pavillon des arts du Musée M+ | label | – |
| calendrier | Concours international 2013 | lieu | West Kowloon, Hong Kong |
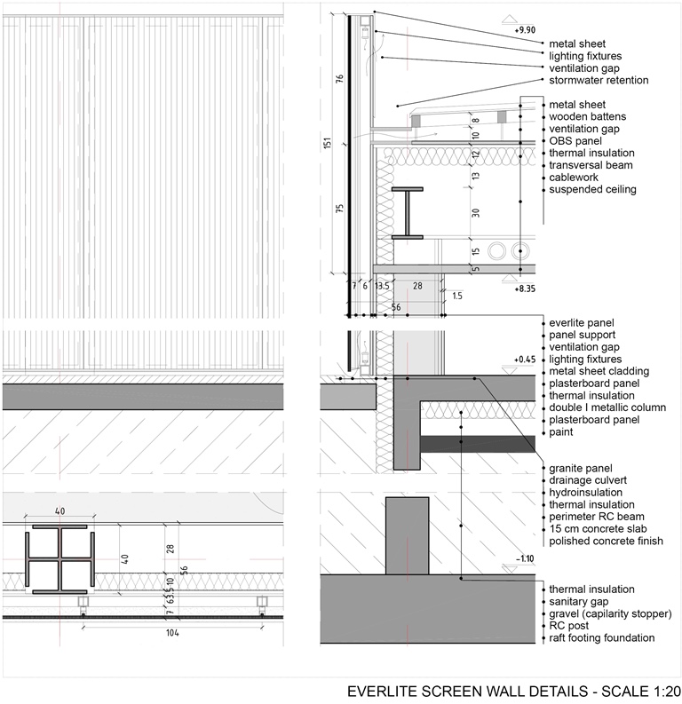
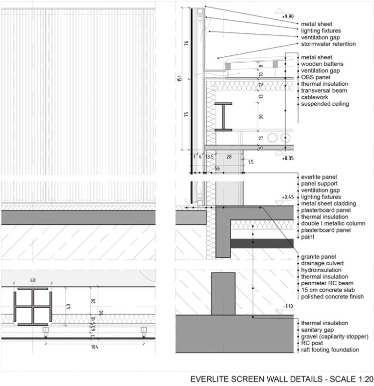
| matériaux | Bois de pin, structure acier, Everlite |








orcid.org/0000-0002-6084-2264
Discussion
No comments yet.