Collaboration within Atelier DCCP Architectes.
Task: project collaboration for the competition.
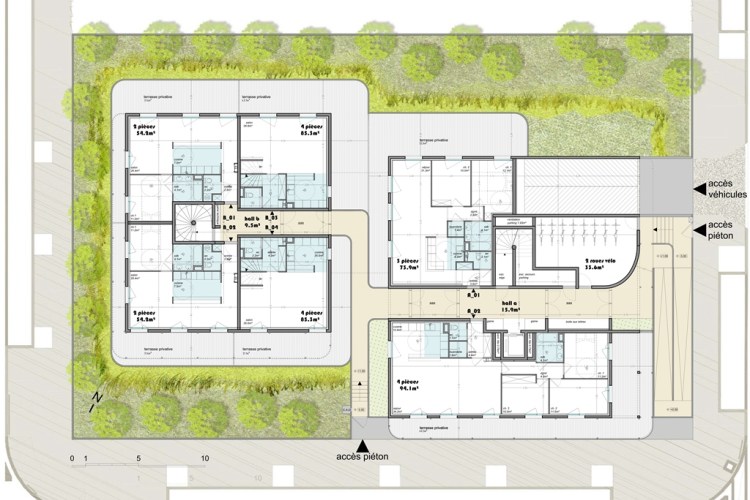
Project facts (FR):
| mou | Interconstruction | coût | 5 800 000 €HT |
| moe | Atelier DCCP Architectes | superficie | 2 250 m2 SHAB |
| programme | 30 logements collectifs | label | H&E |
| calendrier | 2014 (concours restreint) projet non retenu | lieu | Vitry sur Seine |
| matériaux | résille acier, résille bois, structure poteau-poutre |
© All images are copyright of Atelier DCCP Architectes.








orcid.org/0000-0002-6084-2264
Discussion
No comments yet.